edombinder
Architekt + Innenarchitekt Partnerschaft

T +49 221 801 67 26
F +49 221 801 67 29
info@edombinder.de

Kartäuserhof 50
D-50678 Köln

2016 | Fertigstellung
D | Köln
Planung | Bauleitung
BRI 480 m3 | Fläche 150 m2

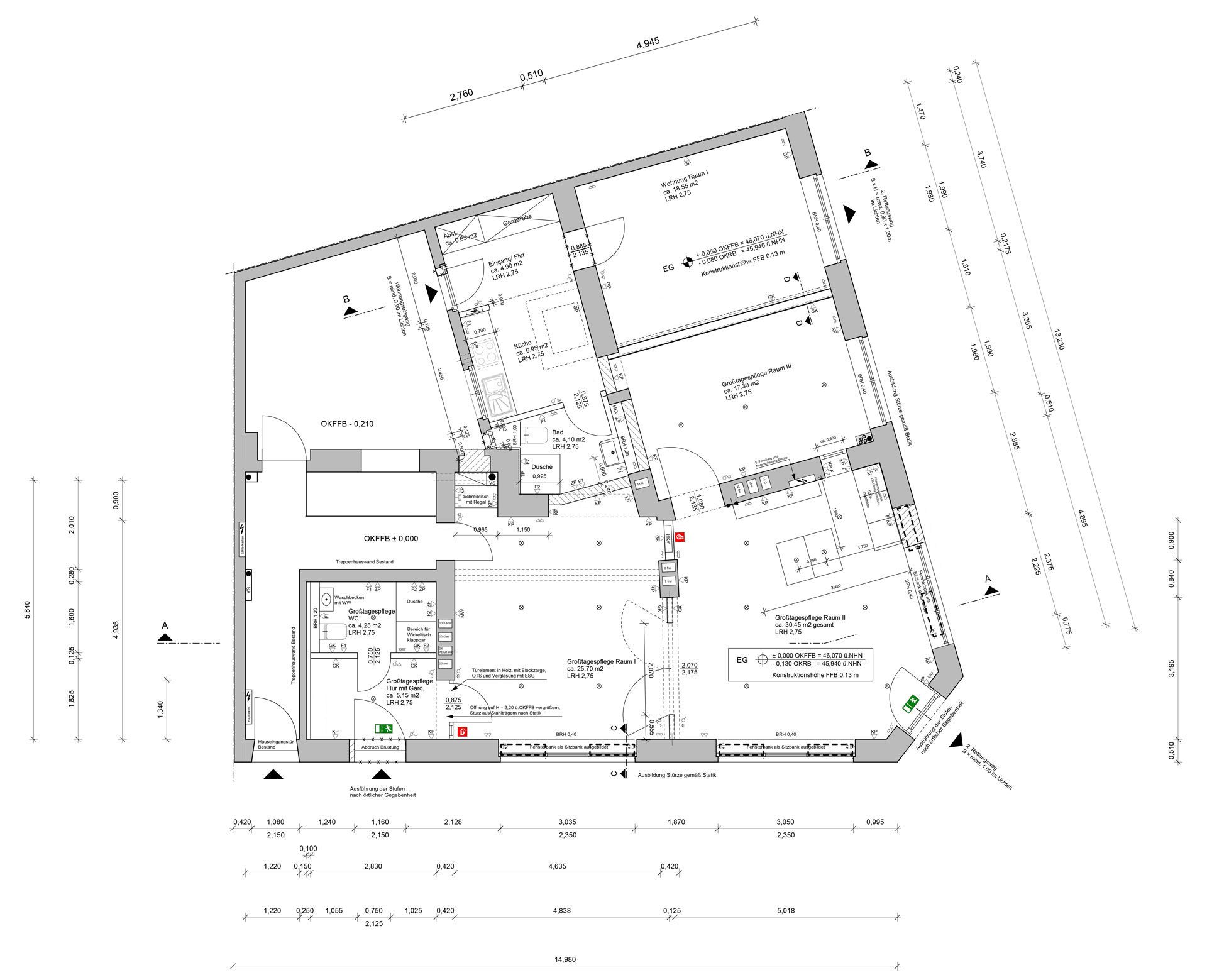
Köln Severinsviertel

UMBAU MEHRFAMILIENWOHNHAUS

Der Ausbau der Pflegeeinrichtung für Kinder wurde für einen privaten Bauherrn geplant und realisiert. Die Großtagespflege befindet sich in einem Mehrfamilienwohnhaus im Severinsviertel von Köln.

Die Großtagespflege befindet sich in den Räumlichkeiten einer ehemaligen Gastwirtschaft. Insofern musste ein Antrag auf Nutzungsänderung gestellt werden. Die gesamte Planung ist mit den zuständigen Stellen abgestimmt worden.

Auf Wunsch der Betreuer werden keine Aufnahmen von den fertiggestellten Innenräumen der Einrichtung veröffentlicht.

edombinder
Architekt + Innenarchitekt Partnerschaft

Dipl.-Ing. Anja Edom
 Architektin
Dipl.-Ing. Hans Binder Innenarchitekt (FH)

Kontakt
T +49 221 801 67 26
F +49 221 801 67 29
info@edombinder.de
www.edombinder.de

Anschrift
Kartäuserhof 50
D-50678 Köln

© edombinder Architekt + Innenarchitekt Partnerschaft | Impressum | Datenschutz